Radiostraat 65, Hilversum

1223 BB Hilversum
Energielabel D
  • 2-onder-1-kapwoning
  • Vier slaapkamers
  • Twee badkamers
  • Dicht bij natuur
  • Ruime achtertuin
Vraagprijs
€ 695.000 k.k.
Soort constructie
Bestaande bouw
Type
2-onder-1-kapwoning en eengezinswoning
Locatie
In woonwijk
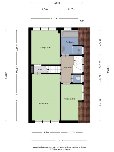
Woonoppervlakte
135 m²
Perceel
202 m²
Inhoud
564 m³
Bouwjaar
1932
Aantal slaapkamers
4 Slaapkamers
Tuin
Achtertuin en voortuin
Hoofdtuin positie
Noordwest
Garage type
Geen garage
Verwarming
C.v.-ketel
Energielabel
D Hoe kan ik mijn huis verduurzamen? Huis verduurzamen?
Uitgelicht

Voel jij je al thuis?

Ruime 2-onder-1 kapwoning

Lichte woonkamer

Open haard

Deze charmante woning ligt in een rustige en sfeervolle straat. De karaktervolle uitstraling van de gevel en het hoge dak vallen direct op. 

De ruime woonkamer biedt voldoende ruimte voor het creëren van een fijne zithoek en het plaatsen van een grote eettafel. Dankzij de open indeling blijf je in contact met elkaar. De open haard voegt extra sfeer toe, ideaal voor gezellige avonden in de winter. 

Open indeling

Inbouwapparatuur

Twee badkamers

Deze open keuken is voorzien van hoogwaardige inbouwapparatuur, zoals een 6-pits gasfornuis, een combi-oven, een ingebouwde koffiemachine en een vernieuwde koelkast, vriezer en vaatwasser. De keuken biedt voldoende werk- en opbergruimte. 

Deze woning is voorzien van twee badkamers. De badkamer op de eerste verdieping beschikt over een ligbad, douche en wastafel, perfect voor een snelle ochtendroutine of een ontspannen moment. Ook is er een apart toilet aanwezig. Op de tweede verdieping vind je de tweede badkamer met een whirlpool, douche, dubbele wastafel en toilet. Ideaal! 

Vier slaapkamers

Grote vliering

Mogelijkheden

Met vier ruime slaapkamers is dit huis ideaal voor gezinnen of mensen die gewoon behoefte hebben aan extra ruimte. De drie kamers op de eerste verdieping zijn perfect bruikbaar als slaapkamers, kinderkamers of een thuiskantoor. De royale vierde slaapkamer op de tweede verdieping biedt nog meer mogelijkheden, zoals een hobbykamer of rustige werkplek. De indeling is praktisch en flexibel aan te passen aan jouw wensen.

Privacy!

Dichtbij centrum

Goede locatie

De tuin is fraai aangelegd en biedt meerdere rustgevende plekjes met veel privacy. Daarnaast is er een aparte wasruimte en een berging met vliering, wat zorgt voor extra opbergruimte en praktische oplossingen voor al je spullen. 

Op loopafstand vind je de prachtige Zuiderheide waar je heerlijk kunt wandelen of terecht kunt voor een sportsessie. Tegelijkertijd ligt het station van Hilversum en het stadscentrum op slechts vijf minuten fietsen. Ook ben je zo op de snelwegen A1 en A27, wat het reizen naar andere steden zoals Amsterdam, Utrecht of Amersfoort een stuk makkelijker maakt. 

Wil je hier meer over lezen?

Download de brochure

Vragen over deze woning?

Onze verkoopmakelaar Dennis Sandberg staat voor je klaar.
Stel een vraag
Omslagfoto brochure

De verkoper vertelt

88095526_633017br_7293687_1640994_photos_radiostraat-65Radiostraat651223BBHilversumNL-53.jpg

Wij gebruiken foto's van freepik.com