Mosveld 59-H

1031 AD Amsterdam
Energielabel C
  • Afgekochte erfpacht
  • Kluswoning
  • Riante tuin
  • Top locatie
  • Voormalige huurwoning
Prijs
€ 400.000 k.k.
VVE kosten
€ 0,00
Soort constructie
Bestaande bouw
Huis type
Appartement en benedenwoning
Locatie
Aan rustige weg, in centrum en in woonwijk
Woonlagen
1 etages
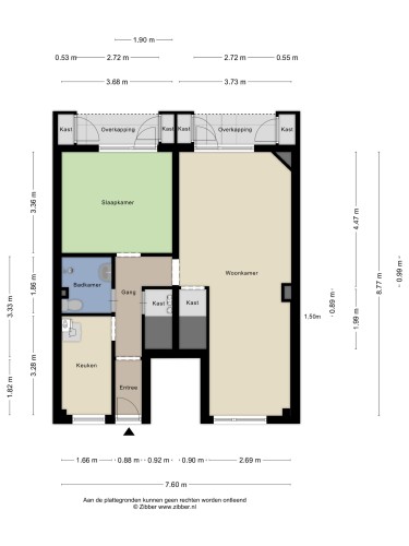
Woonoppervlakte
60 m²
Inhoud
197 m³
Bouwjaar
1925
Aantal slaapkamers
1 Slaapkamers
Tuin
Achtertuin
Garage type
Geen garage
Schuur
Aangebouwd hout
Verwarming
C.v.-ketel
Energielabel
C Hoe kan ik mijn huis verduurzamen? Huis verduurzamen?
Hoofdfoto

Kluswoning met karakter – Mosveld 59-H, Amsterdam-Noord
Ben jij een starter met twee rechterhanden en oog voor potentie? Dan is het Mosveld 59-H precies wat je zoekt.
Deze charmante woning ligt in een buurt met een sociaal en hecht karakter. Hier zeggen buren elkaar nog gedag en wordt er naar elkaar omgekeken. Geen gladgepolijste nieuwbouwwijk, maar een échte Amsterdamse volksbuurt met een sterk gemeenschapsgevoel en volop ruimte voor nieuwe energie.
De woning zel

f heeft aandacht nodig, maar biedt een uitstekende basis voor wie zijn eigen plek wil creëren. Denk: een ruime woonkamer, goede lichtinval en een fijn balkon. Hier kun je jouw ideeën en stijl helemaal kwijt.
De wijk isvolop in ontwikkeling, maar behoudt tegelijkertijd haar authentieke karakter. Rondom vind je kleinschalige ondernemers, buurtinitiatieven en voorzieningen op loopafstand. En met de pont of de Noord/Zuidlijn sta je zó in het centrum van de stad.
Wat je moet weten:
Perfect voor starters met klusambitie
Gelegen in een sociale, betrokken buurt
Nabij winkels, OV en uitvalswegen
Volop mogelijkheden om naar eigen wens te moderniseren
Betaalbare kans om in Amsterdam te starten met wonen én opbouwen
-Woonoppervlak ca 60 m²
-Bouwjaar 1925;
-Erfpacht afgekocht tot 30-6-2099;
-Berging onder de trap;
-Servicekosten € 140,37 per maand;
-Verwarming en warm water middels CV-ketel;
-Energielabel aanwezig;
-Er is een vaste notaris, t.w. Spier en Hazenberg te Amsterdam;
-Bewoning door eigenaar/bewoner, m.u.v. de ouder/kind situatie;
-Voorrangsregeling sociale huurders metropool Amsterdam;
-Ouderdomsclausule, niet-zelfbewonings,-asbestclausule van toepassing;
-Anti-speculatiebeding met een termijn van 3 jaar;
-Bepaling omtrent verbod samenvoegen van appartementen;
-Kwalitatieve verplichting energietransitie;
-#Ymereverkoopt
Ben je op zoek naar een plek met karakter, waar je zelf iets van kunt maken – en waar de buurt je bij naam kent? Dan is Mosveld 59-H een bezoek waard.

Vragen over deze woning?

Onze verkoopmakelaar Remco Foget staat voor je klaar.
Stel een vraag
Hoofdfoto

De verkoper vertelt

Voorheen werd deze woning verhuurd, maar wordt nu te koop aangeboden! De woning biedt mogelijkheden en heeft onze huurder altijd een goed thuisgevoel gegeven.


Bent u overtuigd? Kom dan snel een kijkje nemen.

Wij gebruiken foto's van freepik.com