Esdoornplantsoen 19, Almere

1326 BW Almere
Energielabel A+
  • Populaire en groene woonwijk
  • Ruim 178m² wonen
  • 5 Slaapkamers + 2 badkamers
  • Auto op eigen oprit
  • Nabij voorzieningen
Vraagprijs
€ 650.000 k.k.
Soort constructie
Bestaande bouw
Type
2-onder-1-kapwoning en eengezinswoning
Locatie
Aan rustige weg en in woonwijk
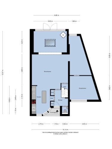
Woonoppervlakte
176 m²
Perceel
209 m²
Inhoud
625 m³
Bouwjaar
1994
Aantal slaapkamers
5 Slaapkamers
Tuin
Achtertuin en voortuin
Hoofdtuin positie
Zuidwest
Garage type
Geen garage
Verwarming
Pelletkachel, stadsverwarming en vloerverwarming gedeeltelijk
Energielabel
A+ Hoe kan ik mijn huis verduurzamen? Huis verduurzamen?
Uitgelicht

Voel jij je al thuis?

Veel daglicht

Een uitbouw

Het hart van het huis

De uitgebouwde woonkamer vormt het hart van het huis, een plek waar elke gezinsactiviteit plaatsvindt. Of je nu samenkomt rond de pelletkachel op koude winteravonden of geniet van een zonnige zomerdag terwijl de tuindeuren wijd openstaan, deze ruimte voelt altijd als een warme omhelzing. De dakkoepel voegt niet alleen een designaccent toe, maar zorgt ook dat elke straal daglicht maximaal binnenvalt. Hier kom je thuis.

Wat maak jij klaar?

Moderne uitstraling

Voor alle kookliefhebbers

De keuken aan de voorzijde heeft een moderne en neutrale uitstraling en is volledig uitgerust. Kookliefhebbers halen hun hart op met de 5-pits inductiekookplaat, terwijl kookgerei én ingrediënten hun plek vinden in de vele kastjes. Of je nu een snelle hap bereidt of een uitgebreid diner kookt, dit is een plek om met plezier tijd door te brengen.

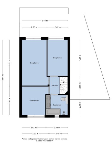
Die ruime slaapkamers

Hoe richt jij her in?

Een praktische badkamer

De eerste verdieping biedt drie ruime slaapkamers, allen neutraal afgewerkt en makkelijk in te richten naar wens. Denk aan een knusse kinderkamer, een comfortabele logeerkamer of een stijlvolle werkkamer. De badkamer is praktisch ingedeeld met een ligbad, dubbele wastafel, douche en toilet, perfect om een drukke dag ontspannen af te sluiten. Op de tweede verdieping vind je de master bedroom met en-suite badkamer. Deze is voorzien van een whirlpool-ligbad, wastafelmeubel en een douche. Een tweede kamer op deze verdieping doet nu dienst als kastenkamer, maar kan makkelijk omgetoverd worden tot extra slaapkamer of hobbyruimte. Op de overloop vindt je de witgoedopstelling.

Ligging op het Zuidwesten

Een oase van rust

Parkeren op eigen terrein

Zodra je de achtertuin binnenstapt, waan je je in een oase van rust. Dankzij de zuidwestelijke ligging heb je hier de hele dag zon. Het onderhoudsarme karakter betekent dat je meer tijd overhoudt om te genieten met vrienden en familie. Aan de voorzijde biedt de oprit ruimte om 2 auto's veilig op eigen terrein te parkeren met een eigen laadpaal. Daarnaast woon je op loopafstand van het Ebenezer Howardpark, de perfecte plek voor een wandeling, een picknick of een potje voetbal met de kinderen.

Wil je hier meer over lezen?

Download de brochure

Vragen over deze woning?

Onze verkoopmakelaar Jeroen Kruizinga staat voor je klaar.
Stel een vraag
Omslagfoto brochure

De verkoper vertelt

87030329_597764br_7181540_1630960_photos_esdoornplantsoen-19Esdoornplantsoen191326bwAlmere_05.jpg

Wij gebruiken foto's van freepik.com