Avegaar 22, Monnickendam

1141 JH Monnickendam
Energielabel A
  • Ruime eengezinswoning
  • Achtertuin op het westen
  • Gelegen in een rustige wijk
  • Drie slaapkamers
  • Op loopafstand van voorzieningen
Vraagprijs
€ 500.000 k.k.
Soort constructie
Bestaande bouw
Type
Eengezinswoning en tussenwoning
Locatie
In woonwijk
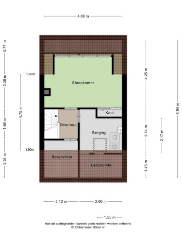
Woonoppervlakte
121 m²
Perceel
124 m²
Inhoud
429 m³
Bouwjaar
1975
Aantal slaapkamers
3 Slaapkamers
Tuin
Achtertuin en voortuin
Hoofdtuin positie
West
Garage type
Geen garage
Verwarming
C.v.-ketel en vloerverwarming gedeeltelijk
Energielabel
A Hoe kan ik mijn huis verduurzamen? Huis verduurzamen?
Uitgelicht

Voel jij je al thuis?

Prettige lichtinval

Prettige lichtinval

Open keuken

De uitgebouwde woonkamer is heerlijk licht en biedt volop ruimte voor zowel een royale zithoek als een grote eettafel. De stenen schouw zorgt voor extra sfeer en karakter.
Aan de voorzijde bevindt zich de open keuken, uitgevoerd met diverse inbouwapparatuur waaronder een 5-pits gaskookplaat, afzuigkap, vaatwasser, combi-oven en koelkast. Vanuit de woonkamer geeft de schuifpui toegang tot de fijne achtertuin.

Ruime kamers

Ruime kamers

Fijne lichtinval

De royale hoofdslaapkamer bevindt zich aan de achterzijde en bestond voorheen uit twee kamers, waardoor deze nu extra ruim is. Indien gewenst kan dit worden verbouwd naar de originele staat. 
Aan de voorzijde ligt de badkamer, voorzien van een ligbad, douche, tweede toilet en wastafelmeubel.
De tweede slaapkamer aan de voorzijde is eveneens goed van formaat en zeer geschikt als slaapkamer, kinderkamer of thuiswerkplek. Deze kamer beschikt over een eigen wasbak.

Zonnige tuin

Zonnige tuin

Volop genieten

De achtertuin is gelegen op het westen, waardoor je hier volop van de middag- en avondzon kunt genieten. De tuin beschikt daarnaast over een vijvertje en biedt voldoende ruimte voor meerdere zitjes.

Kindvriendelijk

Kindvriendelijk

Mooie omgeving

De woning ligt in een prettige, groene woonomgeving met voorzieningen in de directe nabijheid. Scholen, sportfaciliteiten, winkels en openbaar vervoer bevinden zich op korte afstand. Ook het historische centrum van Monnickendam met zijn gezellige haven, terrasjes en karakteristieke straatjes is snel bereikbaar. Daarnaast ben je binnen enkele minuten in het landelijke Waterland voor wandelen en fietsen, en ook Amsterdam ligt op korte afstand. Een ideale combinatie van rust, ruimte en bereikbaarheid! 

Wil je hier meer over lezen?

Download de brochure

Vragen over deze woning?

Onze verkoopmakelaar Marco Kuhne staat voor je klaar.
Stel een vraag
Omslagfoto brochure

De verkoper vertelt

Wij gebruiken foto's van freepik.com