Waterman 81, Hoorn

1622 CS Hoorn
Energielabel A
  • Energielabel A
  • Kindvriendelijke buurt
  • Goede locatie nabij voorzieningen
  • Met stenen berging
  • Nette keuken en badkamer
Vraagprijs
€ 310.000 k.k.
Soort constructie
Bestaande bouw
Type
Appartement en maisonnette
Locatie
Aan rustige weg, in woonwijk en vrij uitzicht
Woonoppervlakte
91 m²
Inhoud
301 m³
Bouwjaar
1978
Aantal slaapkamers
2 Slaapkamers
Tuin
Geen tuin
Garage type
Geen garage
Verwarming
C.v.-ketel
Energielabel
A Hoe kan ik mijn huis verduurzamen? Huis verduurzamen?
Uitgelicht

Voel jij je al thuis?

fijne lichtinval

ruime woonkamer

brede raampartijen

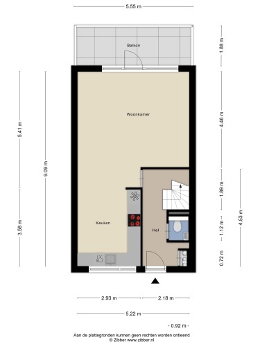
Zodra je binnenkomt in dit appartement, weet je: dit is een plek waar je je meteen thuis voelt. De entree heeft een nette indeling met meterkast, een toilet en de trap naar boven. Maar eerst naar de leefruimtes op de begane grond!

De lichte, brede woonkamer die volledig balkongericht is. Door de brede raampartijen valt het zonlicht prachtig naar binnen en krijg je meteen zin om de deur open te gooien. 

lekker kokkerellen

open keuken

met inbouwapparatuur

De open keuken voelt heerlijk ruim aan. Met een modern design, een 4-pits inductiekookplaat, afzuigkap, vaatwasser, spoelbak en koel-vriescombinatie heb je hier alles wat je nodig hebt om lekker te koken, op een royaal werkblad. Of je nu een maaltijd alleen klaarstoomt of een gezellig dineravondje organiseert, dit is een keuken die alles aan kan. 

uitgerust ontwaken

2 slaapkamers

meer kamers mogelijk

Op de eerste verdieping ontdek je de perfecte balans tussen functionaliteit en comfort. De twee slaapkamers voelen ruim aan door de hoge plafonds en bieden meer dan genoeg plek voor een heerlijk tweepersoonsbed, een inloopkast of zelfs een rustige werkplek. 

Ook bevindt zich op deze verdieping de badkamer, netjes afgewerkt, praktisch en alles wat je nodig hebt. Met een douche, modern wastafelmeubel en een handdoek radiator ga je hier elke dag met frisse energie naar buiten. Handig: op dezelfde verdieping vind je een grote bergruimte, perfect voor je wasmachine, CV-ketel, mechanische ventilatiebox én opslagruimte. Wanneer hier een dakraam geplaatst wordt is deze ruimte ook goed te gebruiken als thuis kantoor of zelfs mogelijk als 3e slaapkamer. 

uitzicht

zonnig balkon

genieten

Het balkon is gelegen op het zuidoosten, waardoor je de een heel groot deel van de dag kunt genieten van de warme zonnestralen. Start je dag hier met een kop koffie of sluit af met een glas wijn, het is hier heerlijk vertoeven. 

Beneden het complex heb je nog een fijne extra: een stenen berging. Van fietsen tot opbergkisten, je kan het hier allemaal kwijt. En dankzij de rustige en kindvriendelijke opzet van de wijk kun je hier lekker genieten van een veilige buurt. 

mooie omgeving

goede locatie

nabij voorzieningen

Dit appartement staat in de Grote Waal welke bekend staat om zijn goede locatie qua voorzieningen. Een supermarkt of speciaalzaak voor de dagelijkse boodschappen? Binnen een paar minuten ben je er. Voor de nodige ontspanning vind je parken en recreatiemogelijkheden om de hoek, en ook scholen, kinderdagverblijven en sportfaciliteiten liggen praktisch in je achtertuin. Vergeet ook het stadsstrand niet welke op 7 minuten fietsafstand ligt! 

Met de uitstekende OV-verbindingen en uitvalswegen kun je bovendien snel en makkelijk pendelen naar omliggende plaatsen. Of je nu een middagje wilt genieten van het bruisende stadsleven in de binnenstad of juist terugtrekt in je lichte, energiezuinige appartement, deze locatie heeft het gewoon allemaal.

Wil je hier meer over lezen?

Download de brochure

Vragen over deze woning?

Onze verkoopmakelaar Emma Groot staat voor je klaar.
Stel een vraag
Omslagfoto brochure

De verkoper vertelt

Zoek je een stijlvolle en duurzame woning met alles binnen handbereik? Dit nette maisonnette-appartement in de Grote Waal is dé plek voor starters, eenpersoonshuishoudens, jonge gezinnen of stadsmensen die toch die oase van rust waarderen. Dit appartement combineert comfort, gezelligheid en gunstige voorzieningen met een energiezuinig label A. Kun jij niet wachten om je eigen plekje te creëren? Lees dan snel verder!

Wij gebruiken foto's van freepik.com