Venenlaan 173, Hoorn

1623 RE Hoorn
Energielabel C
  • Starters opgelet
  • In geliefd Venenlaankwartier
  • Goed onderhouden tussenwoning
  • Zonnige tuin
  • Nabij alle denkbare voorzieningen
Vraagprijs
€ 375.000 k.k.
Soort constructie
Bestaande bouw
Type
Eengezinswoning en tussenwoning
Locatie
Aan rustige weg, in centrum en in woonwijk
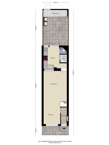
Woonoppervlakte
83 m²
Perceel
84 m²
Inhoud
275 m³
Bouwjaar
1925
Aantal slaapkamers
2 Slaapkamers
Tuin
Achtertuin
Hoofdtuin positie
Noordwest
Garage type
Geen garage
Verwarming
C.v.-ketel en vloerverwarming gedeeltelijk
Energielabel
C Hoe kan ik mijn huis verduurzamen? Huis verduurzamen?
Uitgelicht

Voel jij je al thuis?

fijne lichtinval

ruime woonkamer

ontspannen

Bij binnenkomst stap je een lichte en ruime straatgerichte woonkamer binnen die direct uitnodigt tot ontspanning. De zachte lichtinval via de grote raampartijen en de warme uitstraling van de vloer zorgen voor een gezellige sfeer die je meteen thuis doet voelen. Of je nu gezellig een avondje doorbrengt met vrienden of gewoon lekker op de bank ploft met een goed boek, deze ruimte heeft het allemaal.

lekker kokkerellen

L-vormige keuken

met inbouwapparatuur

De tuingerichte keuken, uitgevoerd in een praktische L-opstelling, biedt alles wat een kookliefhebber wenst. Met voldoende werkruimte, opbergmogelijkheden aan de tuinzijde maakt koken hier een feestje. Stel je eens voor: koken op een zomerse avond terwijl je de tuindeuren open hebt staan en de frisse geur je keuken binnenlaat.

De begane grond wordt verder gecompleteerd door een nette toiletruimte en een praktische inbouwkast met wasmachine-aansluiting en cv ketel. Elke vierkante meter van deze woning is benut, en dat merk je aan de functionaliteit van de ruimtes.

hoe deel jij het in?

2 slaapkamers

nette badkamer

Via de trap naar boven kom je uit op de eerste verdieping met twee royale slaapkamers, beide licht en ruim. Perfect voor een master bedroom en een tweede kamer die bijvoorbeeld gebruikt kan worden als kinder- of werkkamer. De nette badkamer heeft alles wat je nodig hebt: ruimte, functionaliteit en een tijdloze look.

 

zonnige tuin

volop genieten

tot rust komen

Met een fijne achtertuin is dit de perfecte plek om eindeloos te genieten van het buitenleven. Denk aan avonden met vrienden, barbecueën met familie of juist een ontspannen ochtend met een kop koffie in de zon. En het beste? Door de gunstige ligging profiteer je volop van zonuren – een luxe die je niet mag onderschatten.

kindvriendelijk

8 zonnepanelen

nabij voorzieningen

We zouden het niet meer zonder kunnen: energiezuinig wonen. Dankzij de 8 zonnepanelen ben je klaar voor de toekomst en houd je de energierekening zo laag mogelijk. Een investering die niet alleen goed is voor je portemonnee, maar ook voor de planeet!

Met deze woning combineer je modern wooncomfort, een centrale ligging in Hoorn én de rust van een fijne buurt. Deze kans komt niet elke dag voorbij!

Wil je hier meer over lezen?

Download de brochure

Vragen over deze woning?

Onze verkoopmakelaar Jeroen Klene staat voor je klaar.
Stel een vraag
Omslagfoto brochure

De verkoper vertelt

85849145_562868br_7024431_1620767_photos_venenlaan-173Venenlaan1731623REHoornNL-02.jpg

Wij gebruiken foto's van freepik.com