Stellingmolen 12, Purmerend

1444 GW Purmerend
Energielabel B
  • Ruime tussenwoning
  • Zonnige tuin op het zuiden
  • 3 slaapkamers (4 mogelijk)
  • Moderne badkamer
  • Kindvriendelijke buurt
Vraagprijs
€ 400.000 k.k.
Soort constructie
Bestaande bouw
Type
Eengezinswoning en tussenwoning
Locatie
Aan rustige weg, beschutte ligging en in woonwijk
Woonoppervlakte
113 m²
Perceel
140 m²
Inhoud
399 m³
Bouwjaar
1979
Aantal slaapkamers
3 Slaapkamers
Tuin
Achtertuin en voortuin
Hoofdtuin positie
Zuid
Garage type
Geen garage
Verwarming
C.v.-ketel en vloerverwarming gedeeltelijk
Energielabel
B Hoe kan ik mijn huis verduurzamen? Huis verduurzamen?
Uitgelicht

Voel jij je al thuis?

Aangenaam lichtinval

Uitgebouwde woonkamer

Voldoende ruimte

Bij binnenkomst wordt u hartelijk verwelkomd in een ontzettend ruime hal die meteen de verbinding legt tussen de entree en de woonkamer. De woning is naar voren uitgebouwd waardoor er een handige garderobekast en verzorgd toilet zijn gesitueerd.  De uitbouw is voorzien van vloerverwarming. 

Gezellig samen tafelen

Open keuken

Lekker koken

De ruime, lichte woonkamer valt direct op door de overvloed aan natuurlijk licht en de naadloze verbinding met de zonnige tuin. Hier kunt u comfortabel ontspannen in een gezellige zithoek of genieten van een intiem diner in de eethoek. De open keuken, opgesteld in een ruime U-opstelling en gelegen aan de straatzijde, zorgt ervoor dat u altijd de sfeer van buiten ervaart, terwijl u kookt.

Hoe deel jij de kamers in?

3 slaapkamers

Verzorgde badkamer

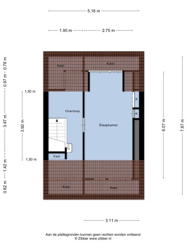
Deze woning beschikt over drie (voorheen vier) slaapkamers, met op de eerste verdieping twee kamers en een extra op de zolder die efficiënt met een vergrote ruimte en dakkapel is ingericht. De grote slaapkamer op het zuiden is extra comfortabel uitgerust met rolluiken.

De verzorgde badkamer is recentelijk geüpgraded en biedt u een ruime inloopdouche, een stijlvol wastafelmeubel en een tweede toilet.

Genieten!

Tuin op het zuiden

Berging aanwezig

Een van de echte hoogtepunten is de zonnige tuin op het zuiden. De tuin is keurig bestraat, biedt volop ruimte voor ontspanning en speeltijd, en herbergt zelfs een fundering voor een eventuele uitbouw. Daarnaast staat er aan de achterzijde een ruime houten berging met elektra, ideaal voor extra opslag. 

Wil je hier meer over lezen?

Download de brochure

Vragen over deze woning?

Onze verkoopmakelaar Stijn van Tol staat voor je klaar.
Stel een vraag
Omslagfoto brochure

De verkoper vertelt

Op zoek naar een lichte tussenwoning? Dan mag u deze keurige, uitgebouwde woning in de kindvriendelijke wijk Molenkoog zeker niet missen! Met een zonnige tuin op het zuiden, 3 (voorheen 4) slaapkamers, eigen parkeergelegenheid en een ideale ligging met uitstekende verbinding naar Amsterdam en openbaar vervoer, vormt dit uw perfecte nieuwe thuis.

86935022_598404br_7166332_1631144_photos_stellingmolen-12Stellingmolen121444GWPurmerend-03.jpg

Wij gebruiken foto's van freepik.com