Nijlstraat 154M

1448 NZ Purmerend
Energielabel A+
  • Geliefde Weidevenne
  • Instapklaar
  • 2-kamerappartement
  • Centraal gelegen
  • Verzorgd complex
Vraagprijs
€ 325.000 k.k.
Soort constructie
Bestaande bouw
Type
Appartement en portiekflat
Locatie
Aan rustige weg, in woonwijk, open ligging en vrij uitzicht
Woonlagen
1 etages
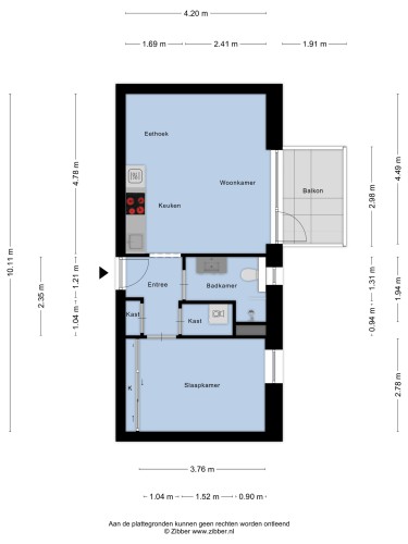
Woonoppervlakte
42 m²
Inhoud
140 m³
Bouwjaar
2015
Aantal slaapkamers
1 Slaapkamers
Tuin
Geen tuin
Garage type
Geen garage
Verwarming
Stadsverwarming en vloerverwarming geheel
Energielabel
A+ Hoe kan ik mijn huis verduurzamen? Huis verduurzamen?
Uitgelicht

Voel jij je al thuis?

Verzorgd complex

Welkom!

Lift aanwezig

We komen het complex binnen op de begane grond. Hier tref je toegang tot de gemeenschappelijke fietsenberging en de lift naar de verschillende verdiepingen.

We stappen de woning binnen via de entree die toegang biedt tot vrijwel alle vertrekken. Te starten in de woonkamer, welkom thuis! 

Lichte woonkamer

Moderne afwerking

Vloerverwarming aanwezig

De woonkamer is lekker licht dankzij het grote raampartij. Daarnaast zijn de wanden strak afgewerkt en in combinatie met de nette vloer met vloerverwarming profiteer je van een uitstekende basis waarin je eigenlijk alleen de verhuisdozen nog hoeft uit te pakken. 

Gezellig tafelen

Open keuken

Wat maak jij klaar?

De open keuken sluit naadloos aan op de woonkamer. Het keukenblok is geplaatst in een wandopstelling en uitgevoerd in een lichte kleurstelling. Dankzij de diverse kasten beschik je over voldoende opbergruimte. Wat betreft de apparatuur vind je hier een oven, vaatwasser en een inductie kookplaat.

1 slaapkamer

Hoe richt jij het in?

Moderne badkamer

Via de hal kom je in de enige slaapkamer die het appartement rijk is. Een ruimte van goed formaat, een fijne hoeveelheid daglicht en een nette afwerking waardoor je ook deze weer vrijwel direct kunt betrekken. Met een comfortabel bed, een linnenkast en een aanvulling van persoonlijke voorwerpen zul je hier binnen no-time profiteren van een welverdiende nachtrust. 

En dan de badkamer. Een heerlijke ruimte waar je na bijvoorbeeld een dag werken even helemaal tot rust kunt komen. Het geheel is van grond tot plafond betegeld en heeft een verzorgde uitstraling. De indeling bestaat uit een een douche, breed wastafelmeubel en het toilet. 

Fijn balkon

Voldoende ruimte

Heerlijk ontspannen

Via de woonkamer heb je toegang tot een fijn balkon. Het balkon is straatgericht en biedt voldoende ruimte om een comfortabel zitje neer te zetten waar je lekker van het buitenleven kunt genieten. 

Centraal gelegen

Geliefde Weidevenne

Nabij voorzieningen

Dit appartement is gelegen in de wijk Weidevenne. Op loopafstand vind je winkelcentrum Weidevenne met een diversiteit aan winkels waaronder supermarkten voor de dagelijkse boodschappen. Verder vind je in de buurt ook het treinstation en basisscholen. Ook zijn uitvalswegen zoals de A7 snel en gemakkelijk bereikbaar.

Wil je hier meer over lezen?

Download de brochure

Vragen over deze woning?

Onze verkoopmakelaar Jelle de Graas staat voor je klaar.
Stel een vraag
Omslagfoto brochure

De verkoper vertelt

Met veel woonplezier heb ik gewoond aan de Nijlstraat.


Het was voor mij mijn eerste koophuis en heb hier altijd met trots gewoond. Het is een fijne rustige buurt met bewoners van alle leeftijden. De verbinding naar Amsterdam is perfect en snel, zowel met de trein als me de bus en allebei op 5 minuten loopafstand van de woning. Met mijn hond liep ik altijd graag in het groengebied dat dichtbij de woning ligt. Helaas ben ik het huis ontgroeid met mijn dochter en ga ik mijn droom achterna om naar Amsterdam te verhuizen.

Wij gebruiken foto's van freepik.com