Koninginneweg 24, Kortenhoef

1241 CT Kortenhoef
Energielabel B
  • Vrijstaande woning
  • Unieke locatie
  • Vijf slaapkamers
  • Karakteristiek
  • Volledig onderkelderd
Vraagprijs
€ 760.000 k.k.
Soort constructie
Bestaande bouw
Type
Eengezinswoning en vrijstaande woning
Locatie
Aan water en landelijk gelegen
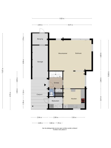
Woonoppervlakte
158 m²
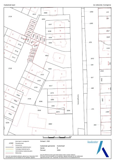
Perceel
309 m²
Inhoud
874 m³
Bouwjaar
1980
Aantal slaapkamers
5 Slaapkamers
Tuin
Achtertuin en zijtuin
Hoofdtuin positie
West
Garage type
Aangebouwd steen
Verwarming
C.v.-ketel
Energielabel
B Hoe kan ik mijn huis verduurzamen? Huis verduurzamen?
Uitgelicht

Voel jij je al thuis?

FinnHouse

Lichtinval

Uniek wonen

De woonkamer valt direct op door de grote ramen, waardoor het heerlijk licht is. De schuifpui geeft toegang tot de achtertuin en zorgt dat binnen en buiten met elkaar in verbinding staan. Het warme houten interieur voegt gezelligheid en karakter toe. Een fijne ruimte om te ontspannen of samen te komen met familie en vrienden.

Slimme indeling

Compleet

Ruime badkamer

De keuken is voorzien van inbouwapparatuur zoals een oven, magnetron, inductiekookplaat, afzuigkap en koel-vriescombinatie. De aangrenzende bijkeuken biedt extra gemak met ruimte voor een wasmachine, droger en vaatwasser. De keuken is een fijne plek voor dagelijks gebruik en sluit praktisch aan op het gezinsleven.

De badkamer op de eerste verdieping is ruim en biedt alles wat je nodig hebt: een inloopdouche, dubbele wastafels en een separaat toilet. Daarnaast is er op de tweede verdieping de mogelijkheid om een extra badkamer te realiseren, handig voor grotere gezinnen.

Vijf royale slaapkamers

Ruimte

Hoe deel jij het in?

Op de eerste verdieping bevinden zich drie ruime slaapkamers die flexibel ingericht kunnen worden, bijvoorbeeld als kinder- of werkkamers. De tweede verdieping biedt nog twee kamers, die eveneens ruim en licht zijn. Met deze vijf slaapkamers is er alle ruimte voor een gezin of om werk- en hobbyruimtes in te richten.

Tuin met terrassen

Zon en schaduw

Dichtbij natuur

De woning heeft een tuin aan drie zijden, waardoor er altijd een plek is om van de zon of schaduw te genieten. Dankzij de terrassen en het groen kun je hier lekker buiten zitten. 

Deze woning ligt in het gezellige Kortenhoef, vlak bij winkels en scholen. Voor natuurliefhebbers zijn er prachtige natuurgebieden en meren dichtbij, ideaal om te wandelen, fietsen of varen. Met het centrum van Hilversum op 5 minuten afstand en Amsterdam binnen een half uur ben je bovendien zo in de stad. Een plek waar rust en praktische voorzieningen samenkomen.

Wil je hier meer over lezen?

Download de brochure

Vragen over deze woning?

Onze verkoopmakelaar Dennis Sandberg staat voor je klaar.
Stel een vraag
Omslagfoto brochure

De verkoper vertelt

86395268_Koninginneweg-24.png

Wij gebruiken foto's van freepik.com