Verkocht onder voorbehoud
Havenrak 21, Broek in Waterland
1151 AG Broek in Waterland
Energielabel A+++
- Waterlandse stijl
- Parkeren eigen erf
- Veel licht en ruimte
- Tuin op het zuidwesten
- Vrij uitzicht
€ 1.250.000 v.o.n.
- Vraagprijs
- € 1.250.000 v.o.n.
- Soort constructie
- Nieuwbouw
- Type
- Geschakelde woning en woonboerderij
- Locatie
- Aan rustige weg, beschutte ligging, in centrum en in woonwijk
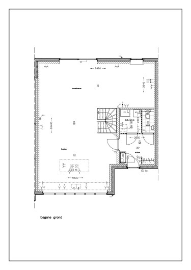
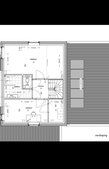
- Woonoppervlakte
- 182 m²
- Perceel
- 232 m²
- Inhoud
- 716 m³
- Bouwjaar
- 2026
- Aantal slaapkamers
- 4 Slaapkamers
- Tuin
- Achtertuin
- Hoofdtuin positie
- Zuidwest
- Garage type
- Geen garage en parkeerplaats
- Verwarming
- Aardwarmte, mogelijkheid voor open haard en vloerverwarming geheel
- Energielabel
- A+++ Hoe kan ik mijn huis verduurzamen? Huis verduurzamen?
Filter op
Resultaten
Vragen over deze woning?
Onze verkoopmakelaar Jan van Eck staat voor je klaar.