Bakkerstraat 127

1221 GV Hilversum
Energielabel D
  • Gezinswoning
  • 94 m2 woonoppervlak
  • Drie slaapkamers
  • Nabij centrum
  • Op loopafstand van station
€ 400.000 k.k. Schuitema Makelaars

Dit project wordt aangeboden door Schuitema Makelaars.

Vraagprijs
€ 400.000 k.k.
Soort constructie
Bestaande bouw
Type
Eengezinswoning en tussenwoning
Locatie
In woonwijk
Woonlagen
3 etages
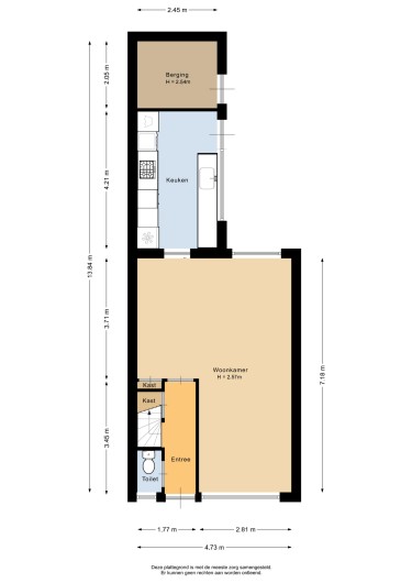
Woonoppervlakte
94 m²
Inhoud
351 m³
Bouwjaar
1931
Aantal slaapkamers
3 Slaapkamers
Tuin
Achtertuin en voortuin
Garage type
Geen garage
Schuur
Aangebouwd steen
Energielabel
D Hoe kan ik mijn huis verduurzamen? Huis verduurzamen?
Uitgelicht

Voel jij je al thuis?

Ruime woonkamer

Licht

Potentie

De woonkamer is licht en ruim. Deze woning biedt een mooie kans om een huis helemaal naar jouw smaak te maken. Dit is de perfecte keuze voor wie op zoek is naar een woning met potentie. 

Werkruimte

Opties

Moderniseren

De keuken en badkamer zijn naar eigen smaak te renoveren. 

Drie slaapkamers

Welterusten

Hoe deel jij het in?

De woning beschikt over drie comfortabele slaapkamers, ideaal voor gezinnen, logees of een thuiskantoor. De woning heeft ook een berging, waar je overige spullen kwijt kunt. 

Dichtbij centrum

Dichtbij voorzieningen

Heide

Voor dagelijkse boodschappen kun je terecht bij winkelcentrum Seinhorst. Daarnaast bevindt Station Hilversum op ongeveer 10 minuten loopafstand. De binnenstad is ook op loopafstand en dit zorgt voor veel gemak. Uitvalswegen zijn ook goed te bereiken, waardoor je met gemak steden bezoekt zoals Utrecht, Amsterdam en Amersfoort. 
Daarnaast kun je voor een fijne wandeling of sportsessie terecht bij de Zuiderheide. Ideaal

Wil je hier meer over lezen?

Download de brochure

Vragen over deze woning?

Onze verkoopmakelaar Dirk Schipper staat voor je klaar.
Stel een vraag
Omslagfoto brochure

De verkoper vertelt

De woning heeft drie slaapkamers en biedt mogelijkheden om de woning te renoveren naar eigen smaak.


Deze woning ligt op korte loopafstand van het centrum en Station Hilversum. Daarnaast kun je voor dagelijkse boodschappen terecht bij winkelcentrum Seinhorst. Voor sportliefhebbers en wandelaars kun je terecht bij de Zuiderheide.

Deze woning wacht op nieuwe bewoners die hun eigen draai eraan geven. Kom je het zelf ontdekken?

Wij gebruiken foto's van freepik.com