Bakhuizen van den Brinkhof 15, Amsterdam

1065 AZ Amsterdam
Energielabel D
  • Unieke kans
  • Vrij uitzicht
  • Opbouwmogelijkheden
  • 4 slaapkamers
  • Gelegen aan het Sloterpark
Vraagprijs
€ 800.000 k.k.
Soort constructie
Bestaande bouw
Type
Eengezinswoning en hoekwoning
Locatie
Aan bosrand, aan rustige weg, open ligging en vrij uitzicht
Woonoppervlakte
132 m²
Perceel
297 m²
Inhoud
530 m³
Bouwjaar
1957
Aantal slaapkamers
4 Slaapkamers
Tuin
Achtertuin, voortuin en zijtuin
Hoofdtuin positie
Zuidwest
Garage type
Aangebouwd steen
Verwarming
C.v.-ketel
Energielabel
D Hoe kan ik mijn huis verduurzamen? Huis verduurzamen?
Uitgelicht

Voel jij je al thuis?

Ruime woonkamer

Lekker licht

Serre!

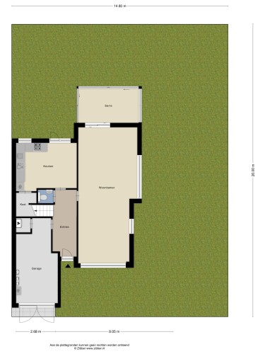
De ruime woonkamer is voorzien van een prachtige houten parketvloer en beschikt over grote raampartijen. Dit zorgt naast veel lichtinval ook voor een goede verbinding met de tuin en de groene omgeving, vanuit de woonkamer kunt u heerlijke genieten van het uitzicht. De woonkamer biedt genoeg ruimte voor een gezellige en comfortabele zithoek en eethoek. Vanuit de woonkamer heb je toegang tot de serre van circa 10 m2. Open de schuifdeuren van de serre en ervaar de verbinding met de tuin. 

Eet smakelijk!

L-opstelling

Samen koken

De keuken is geplaatst in een L-opstelling en biedt voldoende werk- en opslagruimte. De keuken is voorzien van inbouwapparatuur, waaronder een vaatwasser, inductiekookplaat en afzuigkap. Er is een losse koelkast. De keuken is van dermate formaat dat er makkelijk een grote eettafel past! Hier kun je gezellig met vrienden en familie dineren. Vanuit de keuken stap je de achtertuin in. 

Verder is er een ruime provisieruimte beschikbaar onder de trap voor al je boodschappen.

4 slaapkamers

Ruime badkamer

Netjes

Middels de ruime overloop is er toegang tot de 4 slaapkamers en de badkamer. De overloop en de slaapkamers zijn voorzien van een houten parketvloer. Er zijn in totaal vier slaapkamers, waarvan drie zeer ruim en voorzien van ingebouwde kasten. Vanuit de hoofdslaapkamer loop je zo je eigen balkon op, dat is toch genieten! Twee slaapkamers beschikken over een wastafel en in de vierde slaapkamer zit momenteel de aansluiting voor de wasmachine. 

De ruime badkamer is voorzien van een granitovloer met vloerverwarming! Dit zorgt voor extra comfort. Verder beschikt de badkamer over een wastafelmeubel, ligbad en een ruime inloopdouche. Een fijne ruimte om jezelf op te frissen!

Deze woning biedt de mogelijkheid tot het opbouwen van een tweede verdieping, uiteraard is hier een vergunning van de gemeente voor nodig. 

Fraaie tuin

Groene tuin

Garage!

Maar echt uniek aan deze woning is de prachtige, fraai aangelegde achtertuin met bijzondere planten en bomen. Je kunt hier heerlijk genieten van de buitenlucht. Een prachtige Japanse-stijl boom siert de tuin, een rustgevende Japanse invloed in hartje Nederland. De voor- en zijtuin zijn direct gelegen aan het Sloterpark.

De woning beschikt over spouwmuurisolatie en heeft gedeeltelijk dakisolatie. Er is een goede mogelijkheid voor het plaatsen van zonnepanelen. 

Direct naast Sloterpark

Centraal gelegen

Kindvriendelijke buurt

De woning is gelegen aan het Sloterpark en Sloterplas. Het is een zeer kindvriendelijke en groene omgeving op 10 minuten fietsen van Oud West en het Vondelpark. Met enkele minuten fietsen bereik je het metrostation aan de Postjesweg of het treinstation Cornelis Lelylaan. Met enkele minuten zit je tevens op de ring (A10). Kortom, een unieke kans om te wonen in een ruime hoekwoning in een kindvriendelijke groene buurt maar wel om de hoek van het bruisende stadsleven van Amsterdam. 

Wil je hier meer over lezen?

Download de brochure

Vragen over deze woning?

Onze verkoopmakelaar staat voor je klaar.
Stel een vraag
Omslagfoto brochure

De verkoper vertelt

Ik heb in dit huis met erg veel plezier gewoond.Ik ben een fervente tuinliefhebber en heb in de loop van de jaren een unieke tuin ontwikkeld, met bijzondere bomen zoals de Ginkgo Biloba en de Judasboom. Deze tuin grenst direct aan het Sloterplaspark. Nu heb ik besloten om kleiner te gaan en daarom de woning te verkopen.

69801993_BakhuizenvandenBrinkhof15Amsterdam01.jpg

Wij gebruiken foto's van freepik.com