Aletta Jacobslaan 76

1442 AH Purmerend
Energielabel D
  • Leuk gezinshuis!
  • 4 (slaap)kamers
  • Nette afwerking
  • Dakkapel
  • Leuk & rustig wonen
Prijs
€ 389.500 k.k.
Soort constructie
Bestaande bouw
Huis type
Eengezinswoning en tussenwoning
Woonlagen
3 etages
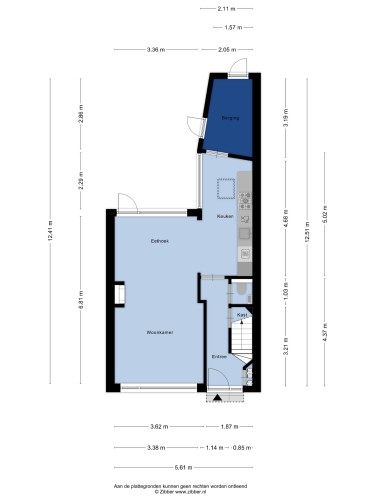
Woonoppervlakte
82 m²
Inhoud
342 m³
Bouwjaar
1961
Aantal slaapkamers
4 Slaapkamers
Tuin
Achtertuin, voortuin en zonneterras
Garage type
Geen garage
Schuur
Aangebouwd steen
Verwarming
C.v.-ketel
Energielabel
D Hoe kan ik mijn huis verduurzamen? Huis verduurzamen?
Uitgelicht

Voel jij je al thuis?

Maak het eigen

Ruime woonkamer

Sfeervol

Stap vervolgens de lichte doorzon woonkamer binnen. De ruimte baadt in natuurlijk licht dankzij grote ramen, en de stijlvolle laminaatvloer en houten haard zorgen voor een warme en uitnodigende sfeer. Of je nu een filmavond organiseert of lekker wilt relaxen met een goed boek, deze woonkamer past zich moeiteloos aan jouw wensen aan.

Moderne uitstraling

Open keuken

Met inbouwapparatuur

De open keuken, in een rechte opstelling, is een waar kookparadijs. Voorzien van een vaatwasser, oven, koelkast, vriezer en gaskookplaat, en met een lichtkoepel die een overvloed aan daglicht binnenlaat, wordt koken een feest. Bovendien heb je vanaf de keuken directe toegang tot de aangebouwde stenen berging; ideaal voor al jouw extra opslagbehoeften.

Ruime kamers

4 slaapkamers

Nette badkamer

Op de tussenverdieping vind je drie ruime (slaap)kamers, waarvan één ook dienst kan doen als wasruimte met wasmachineaansluiting. Op de zolderverdieping bevindt zich de vierde slaapkamer, compleet met een dakkapel die extra lichtinval en oppervlakte toevoegt.

De volledig betegelde badkamer met een ruime douche en een wastafel, gecombineerd met een separaat toilet op de overloop, biedt praktisch comfort en stijl.

Groene oase

Met achterom

Kindvriendelijk

Buiten wacht een tuin zonder directe achterburen. Een handige achterom zorgt ervoor dat je de tuin gemakkelijk kunt betreden. De fijne tuin is aangrenzend aan een grasveld met kindvriendelijke attributen. Wat wil je nog meer?

Wil je hier meer over lezen?

Download de brochure

Vragen over deze woning?

Onze verkoopmakelaar Donna van Dijk staat voor je klaar.
Stel een vraag
Omslagfoto brochure

De verkoper vertelt

Ben jij klaar voor een nieuw hoofdstuk in je leven? Deze gezellige tussenwoning in Overwhere-Zuid in Purmerend biedt jou en je gezin de perfecte mix van ruimte, comfort en stijl.


Denk aan 4 ruime (slaap)kamers, een nette afwerking en een mooie tuin grenzend aan een groen grasveld – ideaal voor de kids om onbezorgd te spelen. Lees snel verder en ontdek waarom dit jouw nieuwe droomwoning kan zijn!

Wij gebruiken foto's van freepik.com