Bouwnummer 306: Kwadijkerpark

1444 JE Purmerend
Energielabel A++
  • 160 m²
  • 6 kamers
  • Vrij op naam
  • Woonhuis
  • 2-onder-1-kapwoning

Omschrijving

KWADIJKERPARK Type Plataan – Heerlijke twee-onder-een-kapwoning met 2 parkeerplaatsen op eigen terrein

Na de succesvolle verkoop van de vorige fasen, start nu de verkoop van fase 3 van Kwadijkerpark. Dit is de laatste mogelijkheid om te wonen in deze duurzame, groene en sociaal betrokken wijk. Of je nu een jong gezin hebt of op zoek bent naar comfortabel wonen op latere leeftijd, hier vind je een

thuis dat past bij jouw leven.

Inschrijven kan digitaal via de projectwebsite tot donderdag 6 november 17.00 uur.

In deze slotfase worden 52 grondgebonden woningen gerealiseerd: 3 vrijstaande villa’s, 18 twee-onder-een-kapwoningen in verschillende types, 24 eengezinswoningen en 7 future living woningen. Allemaal ontworpen met oog voor comfort, duurzaamheid en toekomstbestendigheid.

De architectuursluit naadloos aan op het Noord-Hollandse landschap. Met natuurlijke materialen, ingetogen kleuren en kenmerkende gevelvormen ademen de woningen de sfeer van dorpen als Broek in Waterland, Kwadijk en de Beemster. Zo ontstaat een eigentijdse wijk met een sterke regionale identiteit.

Wonen in Kwadijkerpark betekent leven te midden van volwassen bomen, waterpartijen en groenstroken met ruimte voorontmoeting en verbondenheid. Autoluwe straatjes, hofjes en speelplekken maken het een veilige en prettige omgeving voor jong en oud. En dat alles op korte afstand van Amsterdam: de dynamiek van de stad is altijd dichtbij, terwijl je thuis geniet van rust, ruimte en natuur.

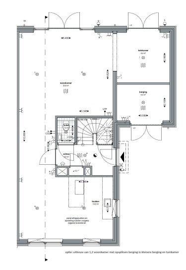
Type Plataan
Deze ruime twee-onder-een-kapwoning met zij-entree biedt volop leefruimte, comfort én mogelijkheden. Aan devoorzijde ligt de brede woonkeuken met ruimte voor een grote eettafel. Aan de tuinzijde vind je een royale woonkamer met openslaande deuren naar het terras. Zo lopen binnen en buiten naadloos in elkaar over. Tevens kun je de woonkamer nog voorzien van een uitbouw.

Op de eerste verdieping bevinden zich drie slaapkamers, een complete badkamer met ligbad, douche en dubbele wastafel, en een separaattoilet. De tweede verdieping is al ingedeeld met twee kamers, die je naar eigen wens kunt gebruiken, bijvoorbeeld als extra slaapkamer, werkruimte of atelier.

Dankzij de zij-entree is de begane grond praktisch en ruimtelijk ingedeeld, met centraal de trapopgang en een binnen doorgang naar de aangebouwde berging. Ideaal voor fietsen of extra opslag. En parkeren doe je gewoon op eigen terrein: tweecomfortabele plekken onder een solar carport die ook nog eens duurzame energie opwekt.

Daarnaast zijn er diverse indelingsvarianten mogelijk. Aan ruimte en mogelijkheden geen gebrek!
De woningen worden compleet opgeleverd met complete badkamer en een Siematic keuken. En uiteraard zijn de woningen zeer energiezuinig met o.a. vloerverwarming, triple glas en zonnepanelen.

Koopsom € 840.000,-- v.o.n.

Prijs
€ 840.000 v.o.n.
HOA costs
€ 0,00
Soort constructie
Nieuwbouw
Huis type
2-onder-1-kapwoning en eengezinswoning
Locatie
Aan park, aan rustige weg, beschutte ligging en in woonwijk
Living floors
3 etages
Woonoppervlakte
160 m²
Capaciteit
427 m³
Bouwjaar
2026
Aantal slaapkamers
5 Slaapkamers
Tuin
Achtertuin, voortuin en zijtuin
Garage type
Carport en geen garage
Schuur
Aangebouwd steen
Verwarming
Stadsverwarming en vloerverwarming gedeeltelijk
Energielabel
A++

Inschrijven voor Kwadijkerpark fase 3

1
2
3
Mijn gegevens
Ik koop samen met mijn partner
Mijn partner
Mijn voorkeuren & motivatie

Vul hieronder je voorkeuren in, gerangschikt op basis van je prioriteit. Je kunt maximaal 10 voorkeuren opgeven

Je inschrijving zal worden opgevolgd door Vivantus Algemeen (Nieuwbouw/Verhuur).

83558808_Ext_Cam_G_5K-verkl.jpg

Wij gebruiken foto's van freepik.com